Construction Estimating Services – Quantity Takeoffs

Construction Estimating Services to Win More Contracts
Preparing a competitive bid needs careful calculation of materials quantities, costs, labor hours, local rates, and other project expenses. Contractors are very busy managing projects on construction sites, so they do not have enough time to create estimates for new projects. Because of this, many contractors do not submit bids for competition and leave around $150,000 per month without knowing it. We provide expert construction estimating services to help contractors fill this gap and increase their bidding capabilities on more contracts.
200+ Years of Combined Expertise: Our certified estimators deliver precise estimates tailored to your project.
Zip-Code-Based Pricing: Accurate material and labor costs for your local area.
Fast Turnaround: Get bid-winning estimates and material takeoffs in 8-24 hours.
95% Bid-Winning Ratio: Trusted by contractors across the USA, Canada, Australia, and the UK.
Residential Estimating Services
We offer construction estimating services for residential projects, including single-family, multi-family, condominiums, apartments, duplexes, triplexes, mansions, flats and many more.
Commercial Estimating Services
Our certified estimators have provided commercial estimating services for over two decades. You can use our estimates for project planning, resource allocation, and cost management.
Industrial Estimating Services
Hire our online construction estimators for all your industrial projects in the USA and beyond. We follow all the strict regulations of AACE and AIQS, along with the local building codes of the project area.
Deliverables Include
- editable file
- Quantities of materials
- Total working hours
- Percentage of profits
- Overhead expenses
- Colored marked-up plans
- Review of addendums
- A complete summary
Construction Takeoff Services from Dedicated Estimators
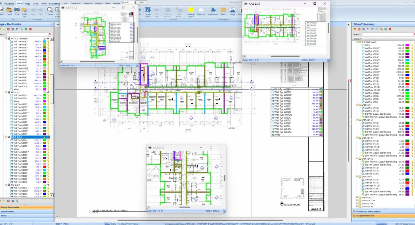
We are the leading provider of material takeoff services for construction projects in the United States. Our expert online estimators review the drawing and understand the project requirements. The estimation process starts by calculating the quantities for site works, such as clearing and grubbing, earthwork, site demolition, erosion control, utility installation, retaining walls, drainage systems, roadways and walkways, site preparation, landscaping, and environmental remediation.
After that, we calculate materials for ceiling, roofing, flooring, framing, doors and windows, openings, wall panels, carpentry, drywall, toilet partitions, electrical wiring, lighting fixtures, mechanical, HVAC, ductwork, plumbing fixtures, piping, insulation, waterproofing, thermal moisture protection, and other interior works.
Our freelance estimators also prepare takeoffs for exterior work, such as ornamental stones, lintels, AC installation, terracotta work, roof, limestone panels, parapet walls, stucco work, face brickwork, painting, and fencing. We prepare a detailed Excel sheet in CSI master format and deliver it to contractors so that they can review it quickly.
Software We Use for Estimating and Material Takeoffs








Building Estimating Services Based on Zip-Codes Pricing
We use zip-code-based pricing to make our building estimates match actual costs in every area of the USA. This is important because the price of materials and labor can change depending on where you live. By using local pricing, we help contractors submit bids that are fair and realistic for their area. Our estimates help you save time and avoid costly mistakes. So, you can bid on more projects and have a better chance of winning contracts. Trust us to grow your business while staying within budget!
Construction Cost Estimate Services for Government Projects
We provide reliable cost estimation services for government construction projects across the USA. Our estimation crew provides accurate estimates to keep projects on budget and time. We are proud to be a dependable partner and trusted partner of the US government in building schools, roads, hospitals, and more. We have years of experience and a commitment to excellence to deliver the correct numbers every time within the shortest turnaround time of 8 to 24 hours. Get a free quote today!
Working with the Following Clients
Construction Estimation Services for Remodeling and Renovation Projects
Are you ready to remodel your kitchen, renovate your bathroom, or add a new room to your home? We offer estimation services to make your renovation or remodeling project successful. Our expert estimators provide estimates for the changes you want in your building. We provide you with a full breakdown of the costs, including materials and labor. Call us now for a free consultation!
Preliminary Estimating Services for Developers and Contractors
We provide preliminary estimating services for developers, contractors, builders, and owners to help them understand the costs of their project before it begins so that they can make better decisions. You can focus on turning your ideas into reality with our preliminary estimates.
Damage Claim Estimates for Construction Projects
We help homeowners and building owners by creating accurate repair estimates for insurance claims. We carefully review drawings or pictures of the damaged parts of the building. Then, we use Xactimate software to calculate the repair costs. Our detailed estimates make it easier for owners to file insurance claims and recover the money they need for repairs. We provide insurance claim estimates for:
- Fallen Trees
- Water Damage
- Hail
- Mold Damage
- Lightning
- Sewage
- Tornadoes
- Wind Damage
- Drain Backup
- Hurricane
- Fire Damage
- Earthquakes
Why Choose Us for Online Construction Estimating Services?
We offer accurate construction estimating services at reasonable prices. Our outsourced estimates can help you in bid planning, budget creation, resource allocation, cost control, and overall project management. Here are other benefits of hiring our freelance estimators
- Team of Expert Online Estimators
- 100% Accuracy in Bid Estimates
- Compliance with Local Codes
- Turnaround Time of 8 to 24 Hours
- Cold-Eye Review Process
- Latest Estimation Tools
- Highest Bid-Winning Ratio of 95%
Estimating Service Areas & Locations
You can easily hire us as part-time, full-time, or project-based estimators by searching construction estimating services near me because we are a US-based estimating firm and provide services from state to state, coast to coast, United Kingdom, Australia, Canada, and North America.
Accurate Bid Estimates, Incredible Results
Chris | Hotel Renovation Project Takeoffs
Chris was faced with bidding on an extensive hotel renovation and needed bid estimates to ensure his numbers were spot on. Turning to our estimation services, he received a detailed estimate covering labor, materials, and timelines. He submitted a confident and competitive bid, and the client was impressed with his professionalism, so he gave him the go-ahead.
Liam | Shopping Mall Expansion Estimation
Liam aimed to win a contract for a shopping mall expansion. He used our estimation team to get an estimate that included every detail, from foundation work to finishing touches. Because of the accuracy of his bid, Liam stood out among competitors and won the project.
Estimation Project Portfolio
We have been providing estimating services for more than twenty years and helping thousands of contractors win bids and make profits across the US. Here are a few of them which we completed in recent years:
Estimating Services for House 39 in New York, US
We provided estimating services for the construction project at House 39, at 225 E 39th St, New York, NY 10016. Our work covered multiple trades, including concrete, masonry, plumbing, HVAC, and electrical systems. For this project, we delivered precise quantity takeoffs, material cost evaluations, and labor cost assessments.
Material Takeoff Services for FUSE Workspace Dripping Springs in Texas
For FUSE Workspace Dripping Springs, located at 13341 W U.S. 290 Building 2, Austin, TX 78737, we provided material takeoff services to support the entire construction process. Our team carefully analyzed every project detail to calculate the exact quantities of materials required.
Cost Estimate Services for PEMS California Warehouse in CA, US
Our team provided precise cost estimate services for the PEMS California Warehouse project at 9105 W Riggin Ave, Visalia, CA 93291. We calculated costs for various CSI trades, including flooring, painting, and specialty finishes.
Quantity Takeoff Services for Florida International Plaza
Our estimators played a key role in the success of the Florida International Plaza at SW 8th St, Miami, FL 33174. We provided accurate quantity takeoffs for CSI trades like interior finishes, fire protection systems, plumbing, and landscaping.
Easy Way to Get Started with Estimation Company
Plans Submission
Please send the project drawings and other specifications to plans@takeoffsharks.us or use the Get a Quote button to upload them directly.
Receive a Quote
Our certified freelance estimators will carefully review the drawing plans and send you a free quote for your estimation project in 5 to 10 minutes.
Pay Invoice
Once you give us the green light, our accounts team will issue an invoice for payment. You can pay for a debit or credit card, bank transfer, or PayPal.
Get Estimates
You will receive an estimate of material costs, labor, pricing, overheads, and profits in the Excel spreadsheet or desired format, along with colored marked-up plans.
Frequently Asked Questions
How Do Your Estimating Services Help Contractors?
Our estimating services provide detailed cost breakdowns, resource allocation plans, and project timelines. Contractors can use our services to present accurate bids, enhance their competitiveness, and increase their chances of winning projects.
How Often Do You Update Your Estimating Processes?
We continuously update our estimating processes to align with current market trends, technological advancements, and changes in construction practices. This ensures our estimates are always relevant and accurate.
What Is Your Turnaround Time for Estimates?
Our typical turnaround time for estimates ranges from 8 to 24 hours, depending on the project’s complexity. We prioritize timely delivery without sacrificing quality.
Do You Offer Discounts for Long-Term Contracts?
Yes, we offer discounts for long-term contracts and ongoing partnerships. This arrangement provides contractors with consistent estimating support while also saving costs.
How Do You Ensure Confidentiality in Your Services?
We take confidentiality seriously and implement strict measures to protect our clients’ information. All project details are kept secure, and we only share information with authorized personnel.
Can You Provide Estimates for Green Building Projects?
Yes, we have expertise in estimating for green building projects. Our team stays updated on sustainable construction practices and can help clients navigate the unique challenges of these projects.
Can You Work with Existing Estimates from Other Sources?
Are Your Estimates Compliant with Local Regulations?
Yes, our estimates are created with compliance in mind. We stay informed about local regulations and codes to ensure that every estimate meets legal requirements.
What Clients Say About Us

Looking for Accurate Estimates to Secure Winning Bids?
We’ve got you covered! Our experts deliver precise, reliable estimates for projects of all sizes and types.
Make informed decisions with confidence.
